
INCH-POUND
MIL-DTL-12883/53B
18 February 2003
SUPERSEDING
MIL-PRF-12883/53A
28 June 1996
DETAIL SPECIFICATION SHEET
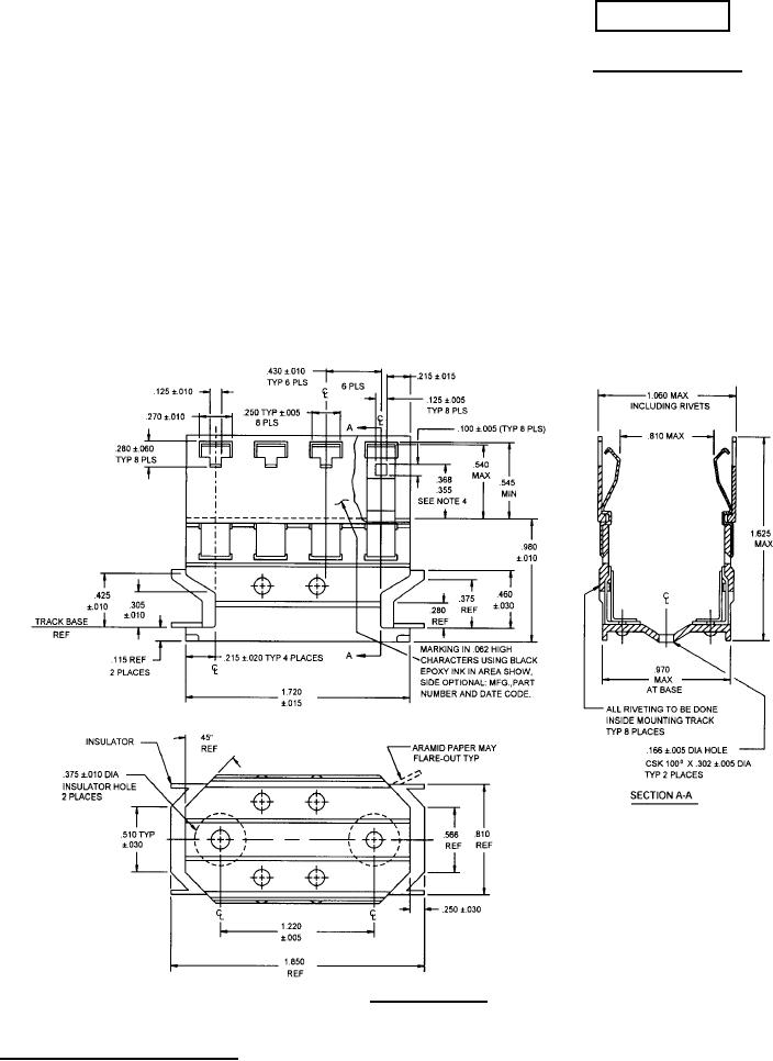
SOCKETS AND ACCESSORIES FOR PLUG-IN ELECTRONIC COMPONENTS, MOUNTING TRACK,
FOR RELAY SOCKETS AND ELECTROMAGNETIC RELAYS
This specification is approved for use by all Departments and Agencies of the Department of Defense.
The requirements for acquiring the product described herein
shall consist of this specification and MIL-DTL-12883.
FIGURE 1. Mounting tracks.
AMSC N/A
1 of 4
FSC 5935
DISTRIBUTION STATEMENT A. Approved for public release; distribution is unlimited.
For Parts Inquires submit RFQ to Parts Hangar, Inc.
© Copyright 2015 Integrated Publishing, Inc.
A Service Disabled Veteran Owned Small Business