
MIL-DTL-24231/14E(SH)
0.821
+0.001
0.051 -0.001R
DETAIL A-2
SEE DETAIL A-2
2.366
2.362
2.036
2.032
1.735
30°
1.642
1
1.627
8
9
1.623
32
32
3
64R
0.594
0.062
0.781 2.750-12UN-2A
29
32
9
32
0.562
+0.002
0.064 -0.002
+0.000
2.219
Ø0.120 -0.005
213
32
HOLE X 0.187
SEE DETAIL A-1
DEEP. DO NOT
0.046
1
PENETRATE.
8
0.046 R
3
4
115
6
3
WELD
32R
+0.002
1.985 -0.002
30°
30°
1
24
PIN, GUIDE 11
+0.002
0.025 -0.002
ALL OVER EXCEPT
125
AS SHOWN
DETAIL A-1
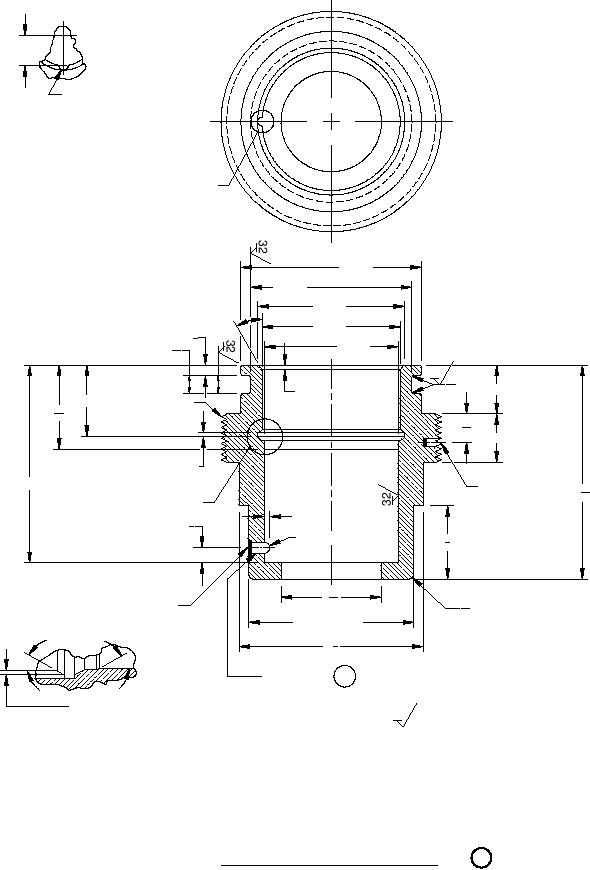
FIGURE 2. Receptacle, body M24231/14-010.
5
3
For Parts Inquires submit RFQ to Parts Hangar, Inc.
© Copyright 2015 Integrated Publishing, Inc.
A Service Disabled Veteran Owned Small Business