
MIL-DTL-24231/21E(SH)
ALL OVER EXCEPT
125
AS SHOWN
Ø2.125
Ø15
8
1
8R
SHELL
45°
32
Ø0.193
11
416
0.189
3
8R
32
Ø 2.618
32
3
2.614
1
16
2
32R
32
Ø 2.592
1.500
30°
2.588
PIN, GUIDE
14
0.815
Ø 0.156
WELD OR BRAZE
0.708
0.678
0.437
1
Ø24
0.625
Ø2.366
PIN Ø0.156 (BRAZE POLARIZING
2.364
13
PIN IN PLACE AND ROUND OFF
1.388
EDGE TO 31 MIN RADIUS)
1.383
2
Ø2.806
2.802
Ø2.609
2.605
0.162
0.156
SR 0.078
C
L
GROOVE
0.077
0.076
0.072
0.072
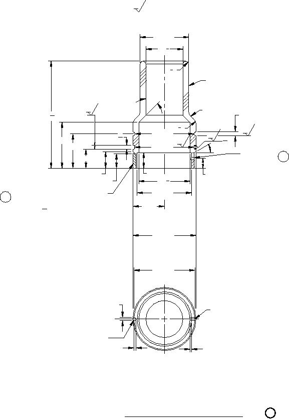
FIGURE 3. Assembly plug shell M24231/21-010.
2
4
For Parts Inquires submit RFQ to Parts Hangar, Inc.
© Copyright 2015 Integrated Publishing, Inc.
A Service Disabled Veteran Owned Small Business