
MIL-DTL-24231/22E(SH)
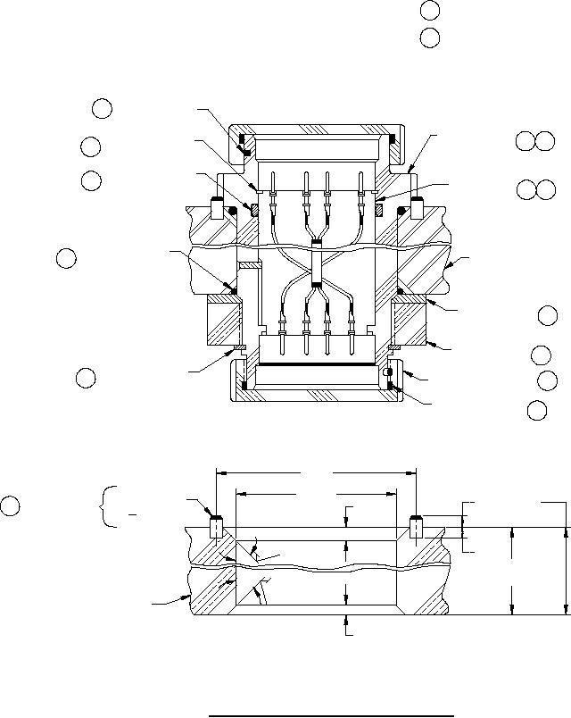
ASSEMBLY, RECEPTACLE (2.125 BASE)
1
M24231/22-001, SYM. NO. 1117
ASSEMBLY, RECEPTACLE (3.875 BASE)
2
M24231/22-002 SYM. NO. 1117.1
PRESSURE SIDE
(INSIDE OF MAST)
19 NYLON INSERT
ASSEMBLY,
RETAINING RING
4
3
17
RECEPTACLE
M24231/19-011
BODY
GASKET, O-RING
13
ASSEMBLY,
SAE-AS28775-334
5
6
INSERT,
MOLDED
GASKET, O-RING
MOUNTING PLATE
15
SAE-AS28775-342
(NOT FURNISHED)
WASHER,
9
M24231/22-053
ROUND NUT
8
M24231/22-052
RETAINING RING
7
CAP, M24231/22-054 10
M24231/22-051
GASKET, O-RING
14
SAE-AS28775-236
INBOARD SIDE
4.531
Ø3.645
Ø0.250 DOWEL
1
3.875
12 M24231/22-056
0.270
4
PIN 11 X 45 CHAM
M24231/22-002
6
45°
1
63
4
2.125
M24231/22-001
45° 63
AL-BRZ
0.270
MOUNTING PLATE DIMENSIONS
FOR M24231/22-001 AND M24231/22-002
FIGURE 1. Connector, receptacle, 80-conductor typical.
2
For Parts Inquires submit RFQ to Parts Hangar, Inc.
© Copyright 2015 Integrated Publishing, Inc.
A Service Disabled Veteran Owned Small Business