
MIL-DTL-24231/7F(SH)
Ø23 SEE NOTE 3.
4
1.617
Ø 1.613
1.405
Ø 1.401
32
Ø0.120+0.000 HOLE,
-0.005
0.187 DEEP, DO NOT
1.209
30°
PENETRATE.
Ø 1.199
2-12UN-2A
32
0.505
1
0.067
1
3
8
0.495
32R
0.057
16
0.786
30°
0.027
29
0.776
32
1332
0.023
7
32
0.066
30°
2.224
0.062
2.214
0.442
1.302
0.051
Ø1.292
0.432
0.041
1.189
Ø1.185
63
1
63
*
8
**
1
16R
23
732
2.224
2.214
0.890
Ø0.860
5.880
5.870
1
UNDERCUT.
8
0.059
0.049R
1.755
1.745
1.750-12UN-2A
115
6
111
0.072
6
3
0.068
4
0.190
1.130
Ø 1.120
0.180
1.555
1.250-12UNF-2B
Ø 1.545
** PIN, WELD.
SEE REQT. 2.
1.630
Ø 1.620
1.750
* 0.051
Ø 1.745
0.041R
2.005
Ø 1.995
125
ALL OVER EXCEPT
AS SHOWN.
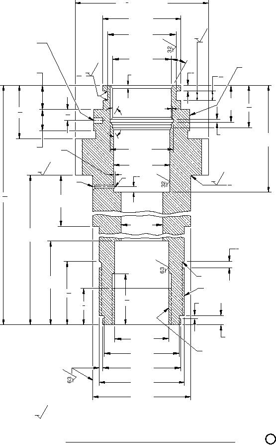
FIGURE 2. Assembly, single cable connector body M24231/7-040.
2
3