
INCH-POUND
MIL-DTL-2726/22B
01 September 2006
SUPERSEDING
MIL-R-2726/22A(SH)
3 July 1986
DETAIL SPECIFICATION SHEET
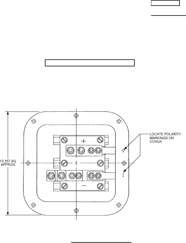
RECEPTACLE, OUTLET, ELECTRICAL, WELDING, 200 - AMPERE,
DIRECT CURRENT, CONSTANT POTENTIAL (SYMBOL NO. 770.2)
Inactive for new design after 28 June 1999.
This specification is approved for use by all Departments
and Agencies of the Department of Defense.
The requirements for acquiring the product described herein shall consist of this
specification sheet and MIL-DTL-2726.
FIGURE 1. Dimensions and configurations.
AMSC N/A
FSC 5935
For Parts Inquires submit RFQ to Parts Hangar, Inc.
© Copyright 2015 Integrated Publishing, Inc.
A Service Disabled Veteran Owned Small Business