
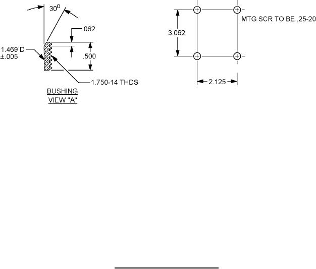
MIL-DTL-2726/63C
Inches
mm
0.13
.005
.062
1.57
.25
6.4
.500
12.50
1.469
37.12
1.750
44.45
2.125
28.58
3.062
77.77
3.500
88.90
NOTES:
1. Dimensions are in inches.
2. Metric equivalents are given for information only.
3. Unless otherwise specified, tolerances are ± .016 (0.41mm) and ± 0°30' on angles.
FIGURE 1. Dimensions and configurations - Continued.
REQUIREMENTS
Dimensions and configurations: See figure 1.
Effectiveness of enclosure: Watertight in accordance with MIL-STD-108.
Receptacle assembly: MIL-DTL-2726/58, Part or Identifying Number (PIN): M2726/58-001.
Material: Enclosure may be of molded plastic, in accordance with type MAI-60 of ASTM-D5948.
Cap Polyamide (black).
Design: Enclosure cover and receptacle assembly may be a one-piece molded unit.
Enclosure assembly: MIL-DTL-24142/9, PIN M24142/9-001.
Mating plug: MIL-DTL-2726/53, PIN M2726/53-001.
PIN: M2726/63-001.
2