
INCH-POUND
MIL-DTL-28840/22C
31 October 2013
SUPERSEDING
MIL-DTL-28840/22B
20 April 2004
DETAIL SPECIFICATION SHEET
CONNECTORS, ELECTRICAL, CIRCULAR, THREADED, HIGH SHOCK,
HIGH DENSITY, SHIPBOARD, METAL CONDUIT BUSHING
This specification is approved for use by all Departments
and Agencies of the Department of Defense.
The requirements for acquiring the product described herein
s
hall consist of this specification sheet and MIL-DTL-28840.
Inches
mm
.01
0.25
.03
0.76
.050
1.27
.053
1.35
.06
1.52
.480
12.19
.875
22.23
1.50
38.10
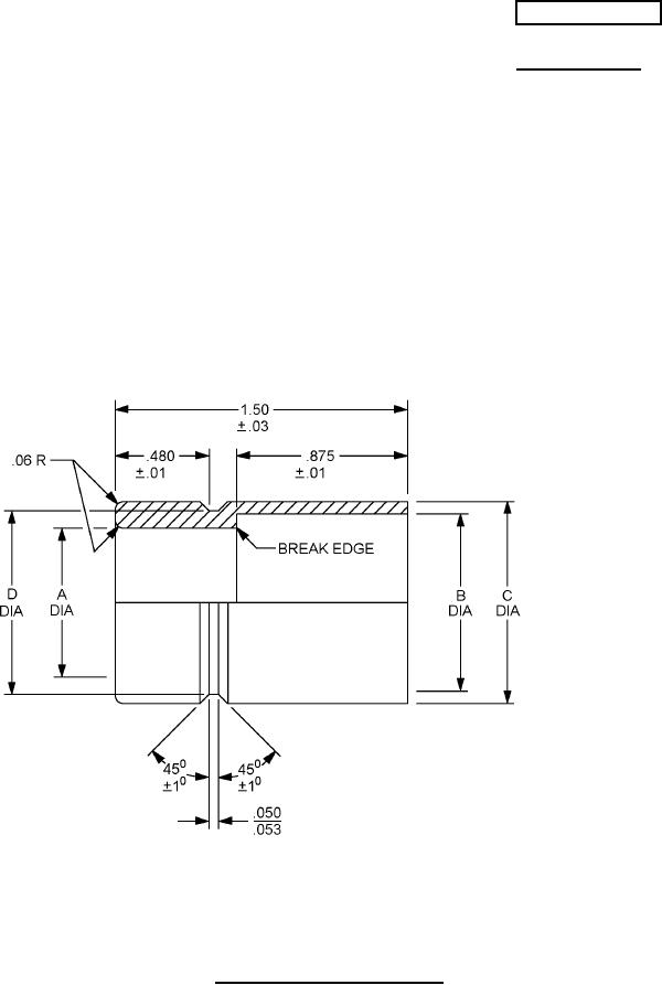
FIGURE 1. Dimensions and configurations.
AMSC N/A
FSC 5935