
INCH-POUND
MIL-DTL-39024/15C
22 September 2008
SUPERSEDING
MIL-DTL-39024/15B
3 February 2003
DETAIL SPECIFICATION SHEET
CONNECTORS, ELECTRICAL, TEST POINT TYPE, PRINTED WIRING TYPE;
SINGLE TEST POINT, LOW VOLTAGE, .080
This specification is approved for use by all Departments
and Agencies of the Department of Defense.
The requirements for acquiring the product described herein
shall consist of this specification sheet and MIL-DTL-39024.
Inches
mm
Inches
mm
.001
0.03
.136
3.45
.002
0.05
.187
4.75
.015
0.38
.235
5.97
.018
0.46
.310
7.87
.020
0.51
.500
12.70
.080
2.03
.510
12.95
.132
3.35
.530
13.46
.134
3.40
.550
13.97
NOTES:
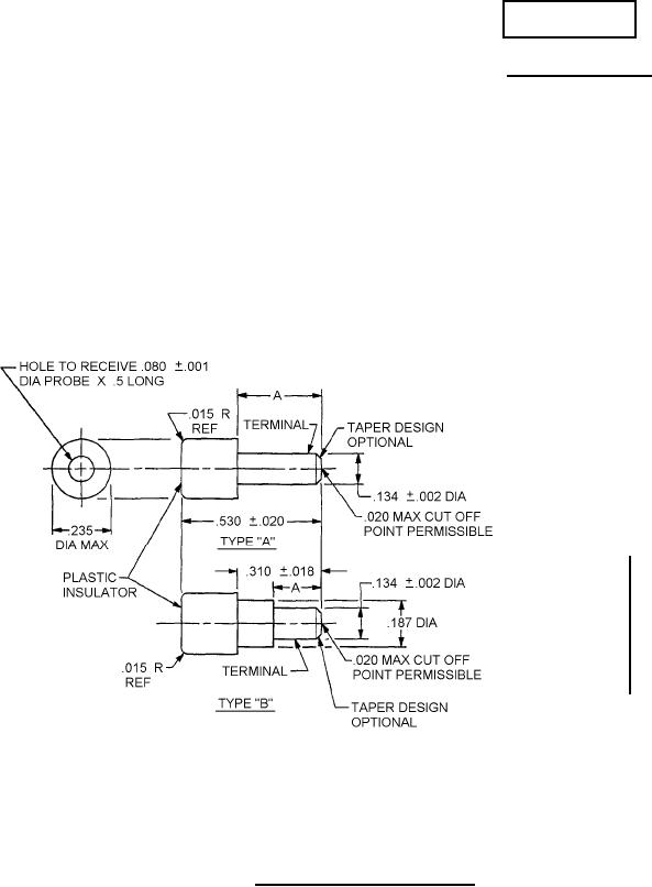
1. Dimensions are in inches. (See table for dimensions not specified on figure 1).
2. Metric equivalents are given for information only and are based on 1 inch = 25.4 mm.
3. Unless otherwise specified, tolerances are ± .010 (0.25 mm).
4. All dimensionless pictorial configurations are for reference purposes only.
FIGURE 1. Configuration and dimensions.
AMSC N/A
FSC 5935
For Parts Inquires submit RFQ to Parts Hangar, Inc.
© Copyright 2015 Integrated Publishing, Inc.
A Service Disabled Veteran Owned Small Business