
MIL-DTL-55302/92F
Inches
mm
Inches
mm
Inches
mm
Inches
mm
.003
.08
.032
0.81
.102
2.59
.270
6.86
.005
.13
.070
1.78
.125
3.18
.330
8.38
.015
.38
.086
2.18
.185
4.70
.340
8.64
.020
.51
.098
2.49
.200
5.08
.410
10.41
.024
.61
.100
2.54
.235
5.97
.450
11.43
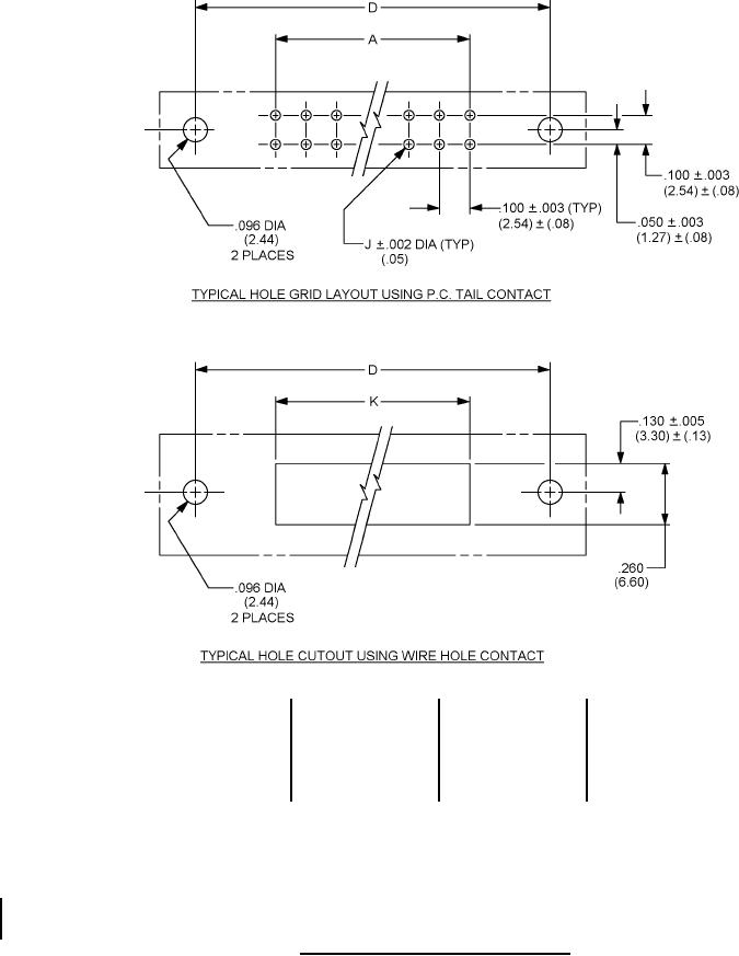
NOTES:
1. Dimensions are in inches.
2. Metric equivalents are given for information only.
3. Unless otherwise specified, tolerances are ± .010 (0.25 mm).
4. Dimensions are .162 (4.11 mm) hex across the flats by .052 deep (1.32 mm) 4 places.
5. Keying sockets shown are in positions 4 and D.
FIGURE 1. Connector receptacle (.100 inch spacing) Continued.
2
For Parts Inquires submit RFQ to Parts Hangar, Inc.
© Copyright 2015 Integrated Publishing, Inc.
A Service Disabled Veteran Owned Small Business