
INCH-POUND
MIL-DTL-83513/21D
18 March 2009
SUPERSEDING
MIL-DTL-83513/21C
27 February 2003
DETAIL SPECIFICATION SHEET
CONNECTORS, ELECTRICAL, RECTANGULAR, RECEPTACLE, MICROMINIATURE,
POLARIZED SHELL, RIGHT ANGLE, SOCKET CONTACTS, 4 ROW, SOLDER TYPE,
STANDARD PROFILE, 100 CONTACTS, PRINTED CIRCUIT BOARD
This specification is approved for use by all Departments and
Agencies of the Department of Defense.
The requirements for acquiring the product described herein shall
consist of this specification sheet and MIL-DTL-83513.
Inches
mm
.003
0.08
.007
0.18
.0038
0.097
.010
0.25
.015
0.38
.025
0.64
.050
1.27
.0671
1.704
.125
3.17
.130
3.30
.144
3.66
.150
3.81
.175
4.45
.178
4.51
.185
4.70
.225
5.72
.2712
6.888
.420
10.67
.765
19.43
1.3842
35.159
1.800
45.72
2.500
63.50
2.780
70.61
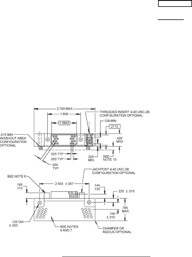
FIGURE 1. Connector, receptacle, .050 inch (1.27mm) spacing.
AMSC N/A
FSC 5935