
INCH-POUND
MIL-DTL-83723/61F
29 June 2009
SUPERSEDING
MIL-DTL-83723/61E
20 September 2002
DETAIL SPECIFICATION SHEET
CONNECTORS, ELECTRICAL, (CIRCULAR, ENVIRONMENT RESISTING),
DUMMY CONNECTORS, RECEPTACLES, (FOR MIL-DTL-26500 AND MIL-DTL-83723,
SERIES III, CLASSES A, M, R, T, W AND Z)
This specification is approved for use by all Departments
and Agencies of the Department of Defense.
The requirements for acquiring the product described herein
shall consist of this specification sheet and MIL-DTL-83723.
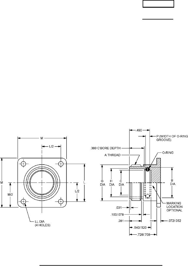
FIGURE 1. Dummy connector, receptacle, threaded coupling M83723/61-1.
AMSC N/A
FSC 5935