
INCH-POUND
MIL-DTL-83723/69B
29 June 2009
SUPERSEDING
MIL-C-83723/69A (USAF)
17 December 1991
DETAIL SPECIFICATION SHEET
CONNECTORS, ELECTRICAL, (CIRCULAR, ENVIRONMENT RESISTING),
PLUG, THREADED COUPLING, (PUSH-PULL, QUICK-DISCONNECT WITH LANYARD),
CRIMP SOCKET CONTACT, SERIES III, CLASSES A, G, M, R, T, W AND Z
This specification is approved for use by all Departments
and Agencies of the Department of Defense.
The requirements for acquiring the product described herein
shall consist of this specification sheet and MIL-DTL-83723.
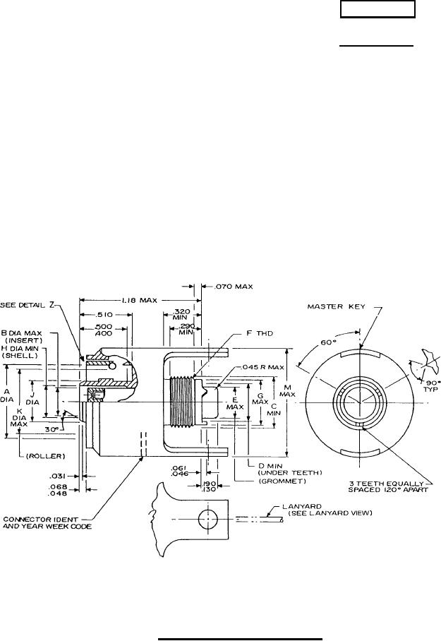
FIGURE 1. Plug, dimensions and configuration.
AMSC N/A
FSC 5935
For Parts Inquires submit RFQ to Parts Hangar, Inc.
© Copyright 2015 Integrated Publishing, Inc.
A Service Disabled Veteran Owned Small Business