
MIL-DTL-83723/71C
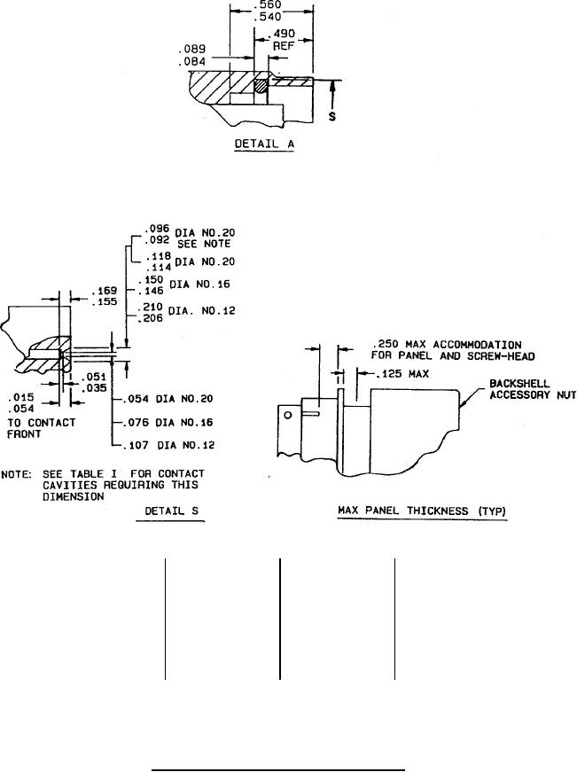
Inches
mm
Inches
mm
Inches
mm
Inches
mm
.015
0.38
.092
2.34
.146
3.71
.210
5.33
.035
0.89
.096
2.44
.150
3.81
.250
6.35
.051
1.30
.114
2.90
.155
3.94
.054
1.37
.118
3.00
.169
4.29
.076
1.93
.125
3.18
.206
5.23
FIGURE 1. Receptacle, dimensions and configurations - Continued.
2
For Parts Inquires submit RFQ to Parts Hangar, Inc.
© Copyright 2015 Integrated Publishing, Inc.
A Service Disabled Veteran Owned Small Business