
INCH-POUND
MIL-DTL-83733/10C
31 January 2011
SUPERSEDING
MIL-C-83733/10B (USAF)
10 December 1980
DETAIL SPECIFICATION SHEET
CONNECTORS, ELECTRICAL, RECEPTACLE, PIN CONTACT, MINIATURE,
RECTANGULAR TYPE, RACK TO PANEL, STAGGERED BUSHING MOUNTING,
ENVIRONMENT RESISTING, 200°C
This specification is approved for use by all Departments
and Agencies of the Department of Defense.
The requirements for acquiring the product described herein
shall consist of this specification sheet and MIL-DTL-83733.
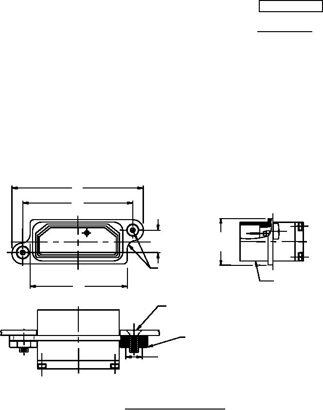
L
M
.566
1.170
.558
1.146
.223
DIA
.213
(4 PLACES)
SEE NOTE 3
N
RECOMMENDED SCREW
(NO.6) .138-32 UNC-2A FLH
.38 LONG
SEE NOTE 7
.286 DIA
.276
(FLANGE HOLE)
FIGURE 1. Dimensions and configurations.
AMSC N/A
FSC 5935
For Parts Inquires submit RFQ to Parts Hangar, Inc.
© Copyright 2015 Integrated Publishing, Inc.
A Service Disabled Veteran Owned Small Business