
INCH-POUND
MIL-DTL-83733/11C
31 January 2011
SUPERSEDING
MIL-C-83733/11B (USAF)
10 December 1980
DETAIL SPECIFICATION SHEET
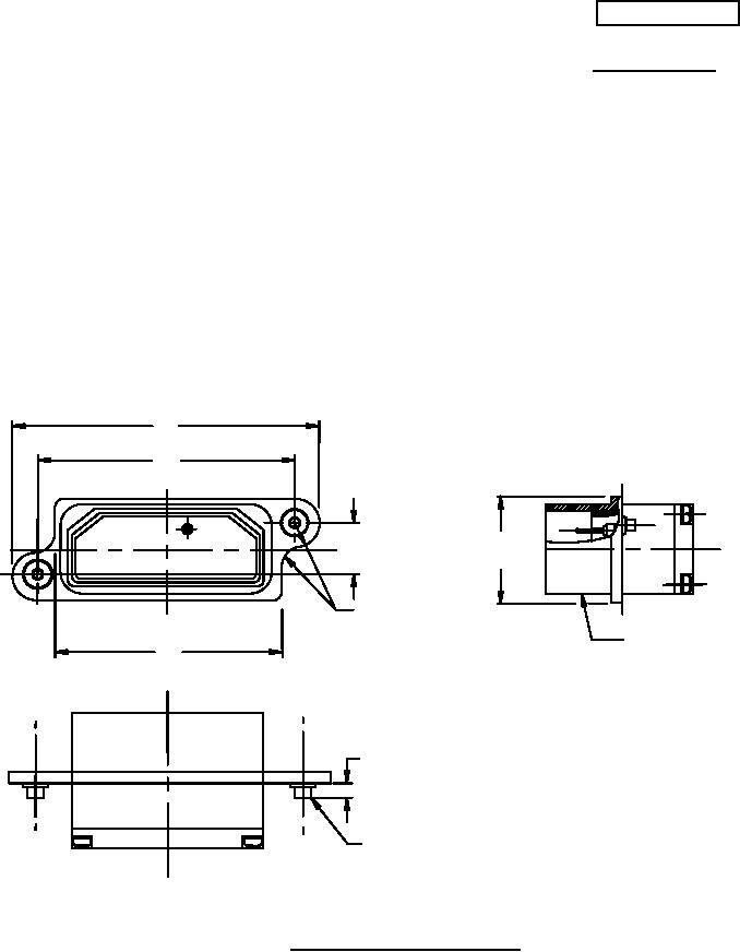
CONNECTORS, ELECTRICAL, RECEPTACLE, PIN CONTACT, MINIATURE,
RECTANGULAR TYPE, RACK TO PANEL, STAGGERED CLINCH NUT MOUNTING,
ENVIRONMENT RESISTING, 200°C
This specification is approved for use by all Departments
and Agencies of the Department of Defense.
The requirements for acquiring the product described herein
shall consist of this specification sheet and MIL-DTL-83733.
L
M
.566
1.170
.558
1.146
.223
DIA
.213
(4 PLACES)
SEE NOTE 3
N
.141 MAX
(NO.6) .138-32 UNC-2B
CLINCH NUT
(2 PLACES)
FIGURE 1. Dimensions and configurations.
AMSC N/A
FSC 5935
For Parts Inquires submit RFQ to Parts Hangar, Inc.
© Copyright 2015 Integrated Publishing, Inc.
A Service Disabled Veteran Owned Small Business