
INCH-POUND
MIL-DTL-83733/2E
31 January 2011
SUPERSEDING
MIL-C-83733/2D(USAF)
28 July 1986
DETAIL SPECIFICATION SHEET
CONNECTORS, ELECTRICAL, RECEPTACLE, PIN CONTACT, MINIATURE,
RECTANGULAR TYPE, RACK TO PANEL, STANDARD HOLE MOUNTING,
ENVIRONMENT RESISTING, 200°C
This specification is approved for use by all Departments
and Agencies of the Department of Defense.
The requirements for acquiring the product described herein
shall consist of this specification sheet and MIL-DTL-83733.
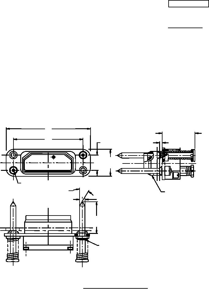
1.250 MAX
L
(SPRING IN FREE
POSITION)
SEE NOTES
M
.566
.196
7, 8 AND 9
.558
.036
1.170
1.146
138-32 UNC-2B
(2) REQUIRED
31°
SEE NOTE 3
29°
.202
DIA
.198
1.370
1.350
.190-24 UNC-2A
(2) REQUIRED
FIGURE 1. Dimensions and configurations.
AMSC N/A
FSC 5935
For Parts Inquires submit RFQ to Parts Hangar, Inc.
© Copyright 2015 Integrated Publishing, Inc.
A Service Disabled Veteran Owned Small Business