
INCH-POUND
MIL-DTL-83733/3C
31 January 2011
SUPERSEDING
MIL-C-83733/3B(USAF)
10 December 1980
DETAIL SPECIFICATION SHEET
CONNECTORS, ELECTRICAL, RECEPTACLE, PIN CONTACT, MINIATURE,
RECTANGULAR TYPE, RACK TO PANEL, WITH GUIDE SOCKETS,
ENVIRONMENT RESISTING, 200°C
This specification is approved for use by all Departments
and Agencies of the Department of Defense.
The requirements for acquiring the product described herein
shall consist of this specification sheet and MIL-DTL-83733.
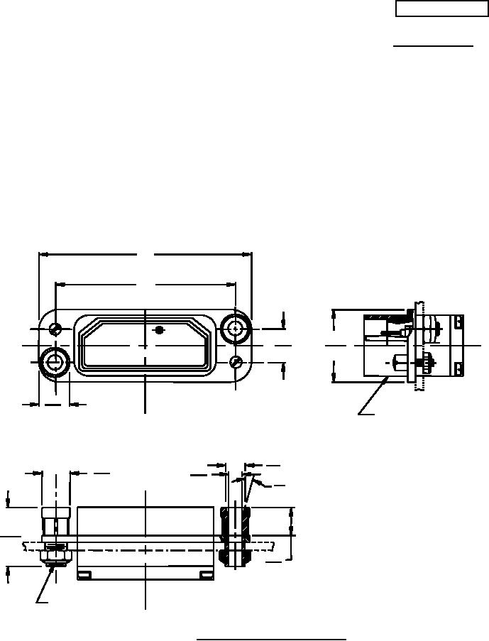
L
M
.566
1.170
.558
1.146
.415
.395
SEE NOTE 3
ACROSS HEX FLATS TYP
360
DIA
.470
.209
350
DIA
DIA
.460
16°
.205
14°
1.070
1.050
.485
.470
.3125-24 UNF-2A
(2) REQUIRED
FIGURE 1. Dimensions and configurations.
AMSC N/A
FSC 5935
For Parts Inquires submit RFQ to Parts Hangar, Inc.
© Copyright 2015 Integrated Publishing, Inc.
A Service Disabled Veteran Owned Small Business