
MIL-PRF-39012/20H
Inches
mm
Inches
mm
Inches
mm
Inches
mm
.001
0.03
.035
0.89
.175
4.45
.245
6.22
,002
0.05
.040
1.02
.183
4.65
.250
6.35
.005
0.13
.043
1.09
.206
5.23
.500
12.70
.015
0.38
.067
1.70
.212
5.38
.611
15.52
.017
0.43
.083
2.11
220
5.59
.033
0.84
.145
3.68
.235
5.97
Color
Color
Contact
Crimp die
Crimp
A
Basic crimp
Dash
band
band
no.
or
Tensile, pounds
+0.001
tool 2/
no.
Ο
1/
positioner
min. (N)
-0.002
X501
20-12
0.033
M22520/1-
M22520/1-
10 lbs (44.48)
Orn.
01
12
6 lbs (26.69)
Blue
X502
20-11
0.017
Violet
M22520/1-
M22520/1-
X503
20 lbs (88.96)
Red
20-10
0.043
01
12
X504
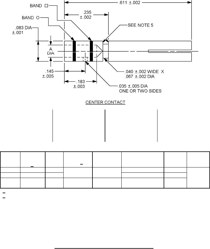
1/ Contact numbers and ferrule numbers are for identification only.
2/ Class 2 tool may be used by OEM (see MIL-DTL-22520).
NOTES:
1. Dimensions are in inches.
2. Metric equivalents are given for information only.
3. Crimp tensile test shall be in accordance with SAE-AS39029.
4. Contact numbers and ferrule numbers are for identification only.
5. .003 inch (0.08 mm) maximum break.
6. Color bands shall be positioned so that no coloring material enters the inspection hole.
FIGURE 2. Contact and ferrule dimensions for category D only Continued.
7
For Parts Inquires submit RFQ to Parts Hangar, Inc.
© Copyright 2015 Integrated Publishing, Inc.
A Service Disabled Veteran Owned Small Business