
MIL-PRF-39012/76D
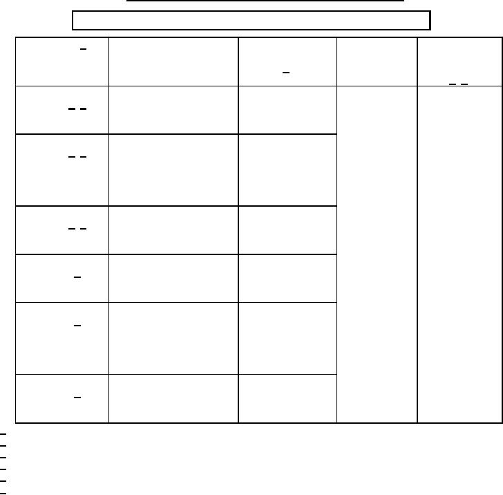
TABLE IV. Category B Non-field replaceable (Special tools may be required).
NOT FOR ARMY, NAVY, OR AIR FORCE USE. FOR OEM USE ONLY
Dash no. 1/
# Applicable cable group
Typical mating
Dimensions
Inches
from MIL-PRF-39012,
connector
(millimeters)
2/
M39012/76
appendix B
maximum
M17/
5/ 6/
B0008 3/ 4/
93-RG178 * @
M39012/73B0008
169-00001 %
M39012/75B0008
B0009 3/ 4/
113-RG316 * @
M39012/73B0009
172-00001 %
M39012/75B0009
119-RG174
173-00001 %
A
1.20 (30.48)
B0010 3/ 4/
M17/94-RG179 ^ * @
M39012/73B0010
M39012/75B0010
B0014 3/
93-RG178 * @
M39012/73B0010
169-00001 %
M39012/75B0010
B0015 3/
113-RG316 * @
M39012/73B0008
172-00001 %
M39012/75B0008
119-RG174
173-00001 %
B0016 3/
94-RG179 ^ @ *
M39012/73B0010
M39012/75B0010
1/
For cross-reference of dash number to superseded PIN or type designation, see table VI.
2/
Mating connector PINs are for reference only. All mating connectors may not be listed.
3/
These connectors have captive center contacts.
4/
Connector bodies shall be gold plated in accordance with ASTM B488, type II, code C, class 1.27.
5/
Dimensions are in inches.
6/
Metric equivalents are given for information only.
#
The latest version of each cable shall be applicable.
*
Cable to be used when performing tests requiring cable except as in note @.
@
Cable to be used for the +200°C thermal shock tests.
%
Caution is directed to the application of this cable above 400 MHz. Attenuation is tested only at 400
MHz. SRL and power handling capabilities are not stipulated herein.
^ These are not 50 ohm cables, therefore, when attached to the specified connectors, VSWR, RF
leakage and insertion loss are not applicable.
NOTE: Connectors mate with connectors of the same material only; Example: M39012/68-3001 mates
with M39012/67-3001, and M39012/68-4001 mates with M39012/67-4001.
9
For Parts Inquires submit RFQ to Parts Hangar, Inc.
© Copyright 2015 Integrated Publishing, Inc.
A Service Disabled Veteran Owned Small Business