
INCH-POUND
MIL-PRF-55339/13B
10 January 2005
SUPERSEDING
MIL-PRF-55339/13A
11 January 1977
PERFORMANCE SPECIFICATION SHEET
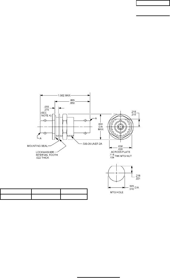
ADAPTERS, CONNECTOR, COAXIAL, RADIO FREQUENCY, IN-LINE, JAMNUT MOUNTED,
(WITHIN SERIES BNC JACK TO SERIES BNC JACK, (HERMETIC AND NON-HERMETIC)), CLASS 2
This specification is approved for use by all Departments and Agencies of the Department of Defense.
The requirements for acquiring the product described herein shall consist of this specification sheet and
MIL-PRF-55339.
Reference
Series
Contact
A
BNC
Socket
mm
Inches
mm
Inches
mm
Inches
mm
0.56
.215
5.46
.500
12.70
.630
16.00
1.40
.218
5.54
.505
12.83
.800
20.32
2.64
.221
5.61
.510
12.95
.850
21.59
2.90
.275
6.98
.620
15.75
.865
21.97
1.562
39.67
NOTES:
1. Dimensions are in inches.
2. Metric equivalents are given for information only.
3. All undimensioned pictorial representations are for reference purposes only.
4. Panel thickness .055 minimum, .275 maximum.
5. Interface dimensions shall be in accordance with MIL-STD-348.
FIGURE 1. General configuration.
AMSC N/A
FSC 5935
For Parts Inquires submit RFQ to Parts Hangar, Inc.
© Copyright 2015 Integrated Publishing, Inc.
A Service Disabled Veteran Owned Small Business