
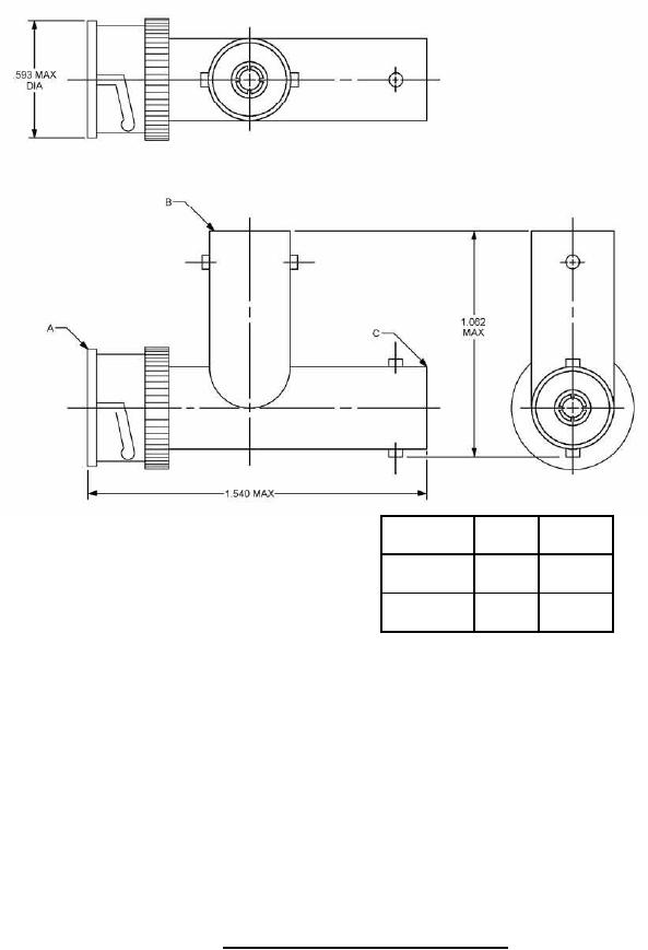
MIL-PRF-55339/17B
Reference
Series
Contact
Inches
mm
A
BNC
Pin
.593
15.06
1.062
26.97
B and C
BNC
Socket
1.540
39.12
PIN M55339/17-00001 or M55339/17-70002
NOTES:
1. Dimensions are in inches.
2. Metric equivalents are given for general information only.
3. All undimensioned pictorial representations are for reference
purposes only.
4. Interfaces to be in accordance with MIL-STD-348, series BNC pin contact and series BNC socket
contact.
FIGURE 2. General configuration, plug - jack - jack.
3
For Parts Inquires submit RFQ to Parts Hangar, Inc.
© Copyright 2015 Integrated Publishing, Inc.
A Service Disabled Veteran Owned Small Business