
INCH-POUND
MIL-PRF-55339/33A
17 September 2004
SUPERSEDING
MIL-PRF-55339/33
11 January 1977
PERFORMANCE SPECIFICATION SHEET
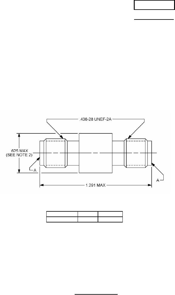
ADAPTER, CONNECTOR, COAXIAL, RADIO FREQUENCY,
(WITHIN SERIES TNC) CLASS 2, STRAIGHT PLUG
This specification is approved for use by all Departments
and Agencies of the Department of Defense.
The requirements for acquiring the document described herein shall
consist of this specification sheet and MIL-PRF-55339.
Reference
Series
Contact
A
TNC
Socket
Inches
mm
.438
11.13
.625
15.88
32.79
1.291
NOTES:
1. Dimensions are in inches.
2. This dimension is the largest overall diameter of the connector.
3. Metric equivalents are given for general information only.
4. Wrench flats to accommodate standard wrench per H-28 appendix.
5. Interface shall be in accordance with MIL-STD-348, series TNC socket contact.
FIGURE 1. General configuration.
AMSC N/A
FSC 5935
For Parts Inquires submit RFQ to Parts Hangar, Inc.
© Copyright 2015 Integrated Publishing, Inc.
A Service Disabled Veteran Owned Small Business