
INCH-POUND
MIL-PRF-55339/39A
10 January 2005
SUPERSEDING
MIL-PRF-55339/39
11 January 1977
PERFORMANCE SPECIFICATION SHEET
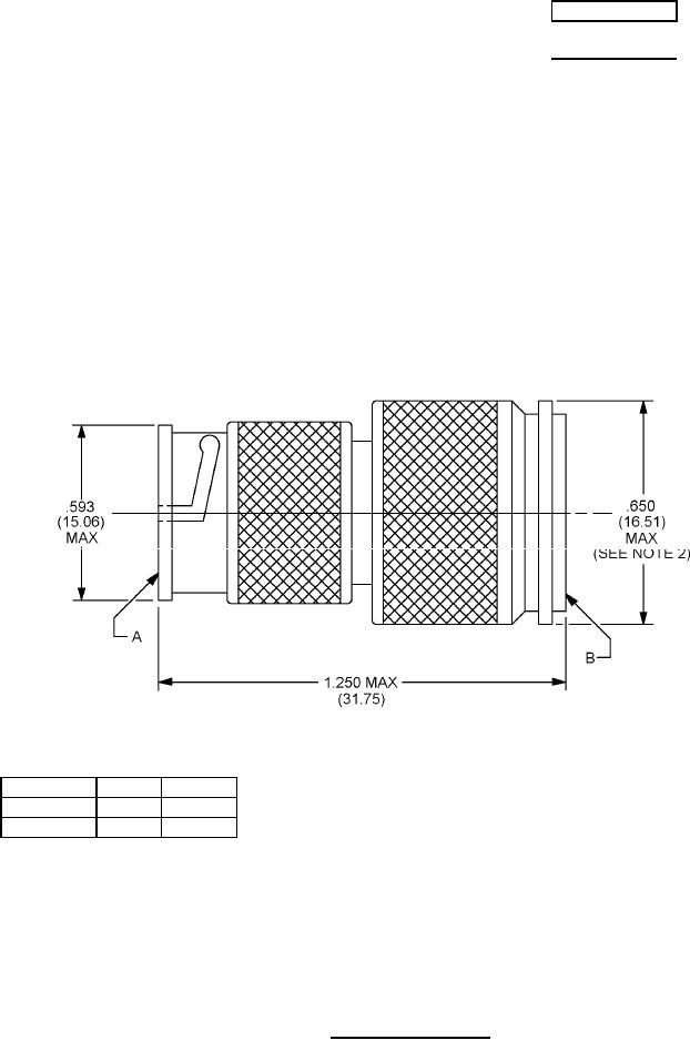
ADAPTER, CONNECTOR, COAXIAL, RADIO FREQUENCY.
(BETWEEN SERIES BNC TO SERIES TNC), CLASS 2, STRAIGHT PLUG
This specification is approved for use by all Departments
and Agencies of the Department of Defense.
The requirements for acquiring the product described herein shall consist of this specification sheet and
MIL-PRF-55339.
Reference
Series
Contact
A
BNC
Pin
B
TNC
Pin
NOTES:
1. Dimensions are in inches.
2. This dimension is the largest overall diameter of the connector.
3. Metric equivalents are given for information only.
4. Shape of coupling nut optional.
5. Interfaces shall be in accordance with MIL-STD-348.
FIGURE 1. General configuration.
AMSC N/A
FSC 5935
For Parts Inquires submit RFQ to Parts Hangar, Inc.
© Copyright 2015 Integrated Publishing, Inc.
A Service Disabled Veteran Owned Small Business