emilspec
An Integrated Publishing, Inc. Site
eMilSpec
An Integrated Publishing Website
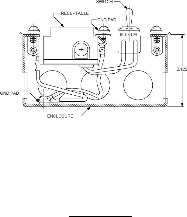
MIL-DTL-2726-43 Receptacle, Electrical, \(Bladed\) 15-Ampere With 3-Ampere Switch, Type Dpst, 125-Volt, Grounded, Totally Enclosed \(Symbol 918.1\)
Pages
1
-
2
-
3
-
4
MIL-DTL-2726/43B
Inches
mm
.219
56
1.500
38.10
1.625
41.27
2.125
53.98
3.000
76.20
4.125
104.77
FIGURE 1. Dimensions and configurations
- Continued.
2