
MIL-DTL-2726/48D
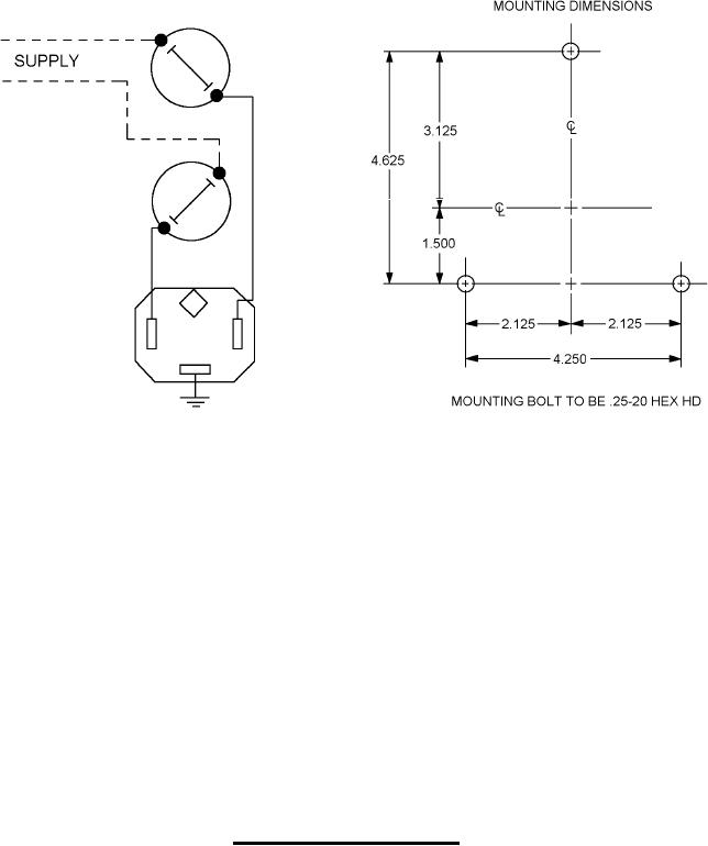
WIRING DIAGRAM
Inches
mm
0.406
.016
10.31
.406
NOTES:
17.07
.672
1. Dimensions are in inches.
36.53
1.438
2. Metric equivalents are given for information only.
38.10
1.500
3. Unless otherwise specified, tolerances are ± .016 (0.41mm).
46.05
1.813
4. Supersedes Drawing 9000-S6202-74068, symbol 900.
53.98
2.125
2.563
65.10
66.67
2.625
79.38
3.125
95.25
3.750
4.250
107.95
111.12
4.375
161.92
6.375
FIGURE 1. Dimensions and configurations - Continued.
3