
MIL-DTL-28731/34C
Inches
mm
Inches
mm
6.35
.250
0.64
.025
10.54
.415
0.8
.03
25.4
1.00
1.40
.055
27.38
1.078
1.52
.060
34.8
1.37
2.03
.080
50.04
1.970
3.56
.140
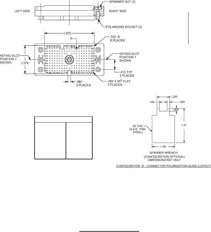
POLARIZING POSITION CHANGE
Polarizing key mating code
P (MALE)
R (FEMALE)
position
position
4
1
5
2
6
3
1
4
2
5
3
6
Keying position on both polarizing sockets can be rotated to desired position by loosening spanner nut
(counter-clockwise), resetting socket in one of six positions then retightening spanner nut (clockwise).
NOTE: Over tightening of spanner nut can fracture connector (see spanner keying wrench).
FIGURE 1. Connector, female rectangular - Continued.
4
For Parts Inquires submit RFQ to Parts Hangar, Inc.
© Copyright 2015 Integrated Publishing, Inc.
A Service Disabled Veteran Owned Small Business