
MIL-DTL-55302/102E
Inches
mm
.015
.38
.125
3.18
.250
6.35
.294
7.47
.312
7.92
.700
17.78
1.000
25.40
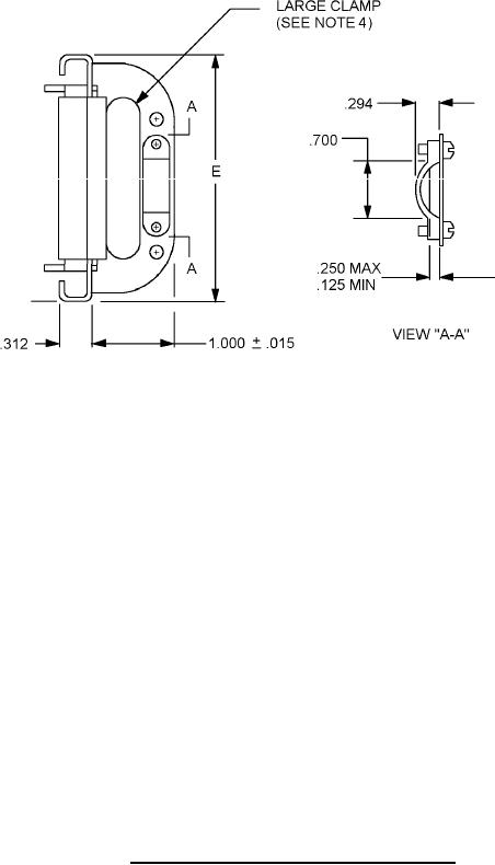
NOTES:
1. Dimensions are in inches.
2. Metric equivalents are given for information only.
3. Unless otherwise specified, tolerances are ±.005 (0.13 mm).
4. Mounting brackets assembled with the insulator will have the clamping hardware shipped loose.
FIGURE 4. Mounting bracket assembly with large clamp.
4
For Parts Inquires submit RFQ to Parts Hangar, Inc.
© Copyright 2015 Integrated Publishing, Inc.
A Service Disabled Veteran Owned Small Business