
MIL-DTL-55302/141C
Arrangements and characteristics.
Contact
Number of
Dimensions (inches)
arrangement
contacts
A
B
± .006
max
(0.15)
M55302/141A
72
4.516
4.200
(114.70) (106.68)
M55302/141B
84
5.114
4.800
(129.90) (121.92)
M55302/141C
96
5.717
5.400
(145.20) (137.16)
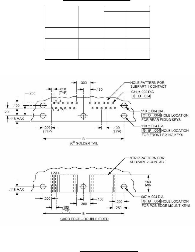
FIGURE 2. Recommended hole patterns.
2
For Parts Inquires submit RFQ to Parts Hangar, Inc.
© Copyright 2015 Integrated Publishing, Inc.
A Service Disabled Veteran Owned Small Business