emilspec
An Integrated Publishing, Inc. Site
eMilSpec
An Integrated Publishing Website
MIL-DTL-55302-174 Connectors, Printed Circuit Subassembly And Accessories: 2 Row, Receptacle Assemblies, Right Angle, 20 Through 150 Contact Positions, For Printed Wiring Boards \(.100 Spacing\)
Pages
1
-
2
-
3
-
4
-
5
-
6
-
7
MIL-DTL-55302/174C
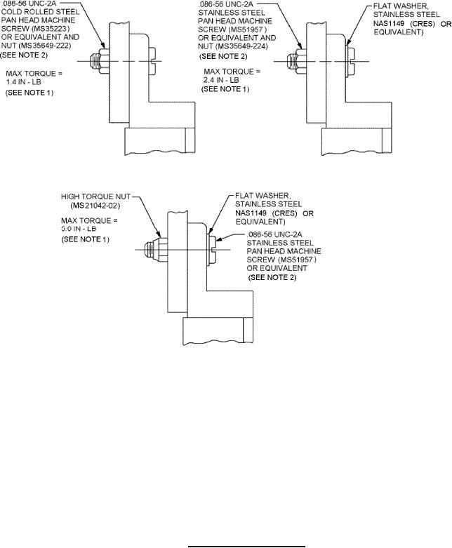
NOTES:
1. Torque wrench must
be used when fastening connector to printed circuit board.
2. Length
to be determined by user.
FIGURE
3. Mounting recommendations.
4