
MIL-DTL-55302/179C
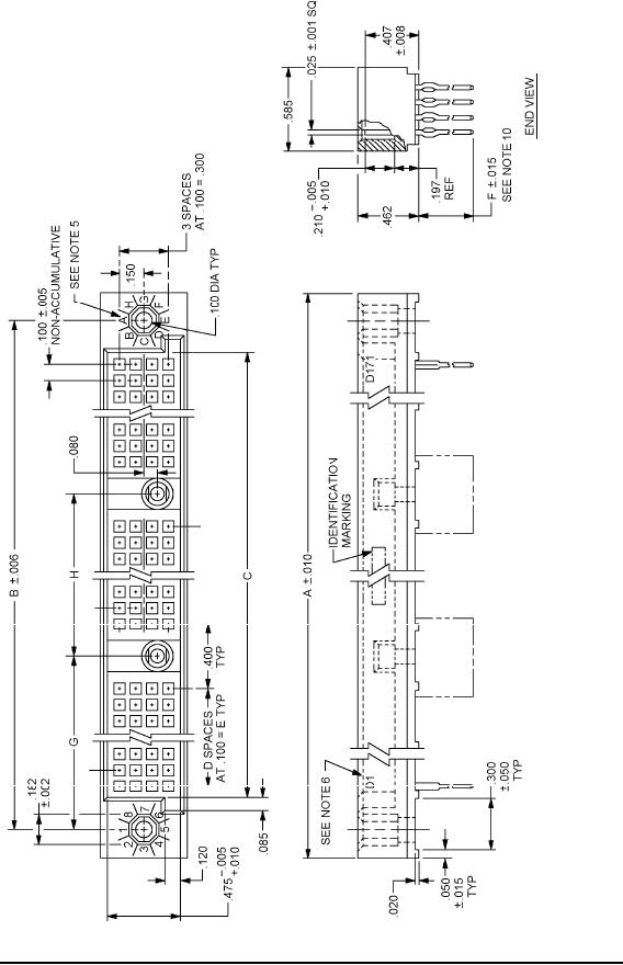
FIGURE 3. Connectors, pin assemblies .100 (2.54 mm) spacing with two guides, 516 through 684 contacts.
5
For Parts Inquires submit RFQ to Parts Hangar, Inc.
© Copyright 2015 Integrated Publishing, Inc.
A Service Disabled Veteran Owned Small Business