
MIL-DTL-55302/181C
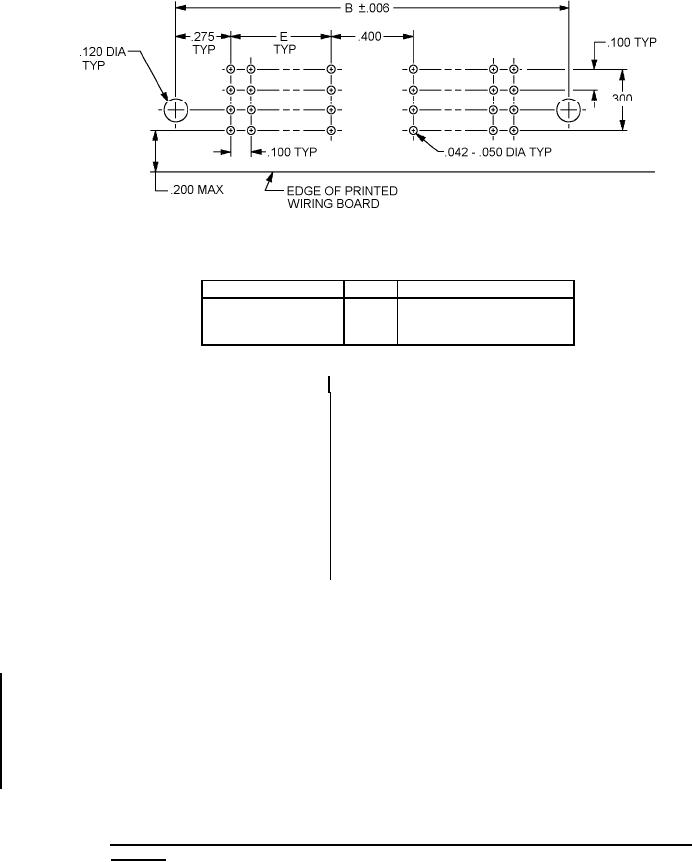
Recommended circuit layout
F ± .015 (0.38 mm)
Type
Type of termination
Inches
mm
.180
4.57
I
Solder post (see note 9)
.120
3.05
IV
Inches
mm
Inches
mm
Inches
mm
.001
0.03
.080
2.03
.300
7.62
.002
0.05
.085
2.16
.344
8.74
.005
0.13
.088
2.24
.400
10.16
.006
0.15
.100
2.54
.407
10.34
.008
0.20
.120
3.05
.462
11.73
.010
0.25
.150
3.81
.475
12.06
.015
0.38
.182
4.62
.585
14.86
.020
0.51
.197
5.00
.662
16.81
.025
0.64
.200
5.08
.882
22.40
.042
1.07
.210
5.33
.050
1.27
.218
5.54
.054
1.37
.275
6.98
NOTES:
1. Dimensions are in inches.
2. Metric equivalents are given for information only.
3. Unless otherwise specified, tolerance is ± .005 (0.13 mm) on decimals and ± 2° on angles.
4. These connectors mate with connectors specified in MIL-DTL-55302/180.
5. Location indicators embossed on surface.
6. Numbers and indicating end cavities, letters indicating row nearest to polarizing feature, and markings every
ten positions stamped on this surface.
7. Mounting ears and hardware are purchased separately. See MIL-DTL-55302/182 for mounting hardware.
8. Chamfers shall be .015 (0.38 mm) minimum at a 45° angle ± 5°.
9. See figure 1 for solder post types. Solder post shall be a .036 (0.91 mm) maximum diameter or .036 (0.91 mm)
maximum across the diagonal.
10. Guide pins are purchased separately. See MIL-DTL-55302/182.
FIGURE 2. Connectors, pin assemblies, right angle .100 (2.54 mm) spacing with one guide, 320 through 488
contacts - Continued.
4
For Parts Inquires submit RFQ to Parts Hangar, Inc.
© Copyright 2015 Integrated Publishing, Inc.
A Service Disabled Veteran Owned Small Business