
MIL-DTL-642/5B
Inch/mm conversion chart
Inches
mm
Inches
mm
Inches
mm
.002
.05
.207
5.26
.620
15.75
.005
.13
.218
5.54
.676
17.17
.008
.20
.281
7.14
.750
19.05
.015
.38
.296
7.52
.781
19.84
.020
.51
.340
8.64
.905
22.99
.045
1.14
.343
8.71
.967
24.56
.093
2.36
.390
9.91
1.093
27.76
.122
3.10
.406
10.31
2.046
51.97
.150
3.81
.4375
11.11
2.062
52.37
.165
4.19
.500
12.70
2.125
53.98
.187
4.75
.609
15.47
3.156
80.16
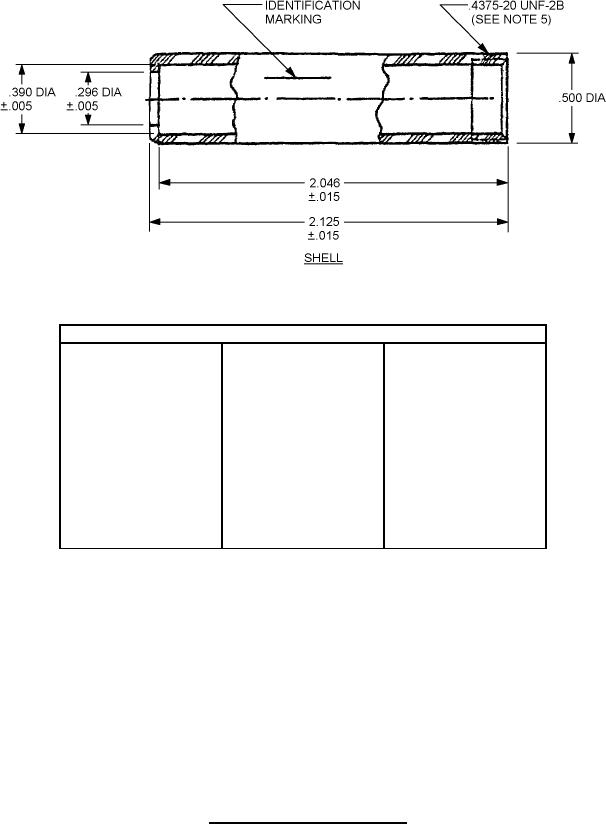
NOTES:
1. Dimensions are in inches.
2. Metric equivalents (to nearest .01 mm) are given for general information only.
3. Unless otherwise specified, tolerance is ± .010 (.25 mm).
4. After assembly, the eccentricity between the end of the shank and the tip of the plug shall not
exceed .008 (.20 mm) TIR (total indicator reading).
5. Thread shall be in accordance with FED-STD-H28, and there shall be sufficient length of thread
on the shell to assure a minimum thread engagement of four full threads between the shell and
the body of the plug after assembled. When the plug shell and body are assembled, the shell
shall not protrude beyond the shoulder of the plug.
FIGURE 1. Dimensions and configuration - Continued.
2