
MIL-DTL-12883/55A
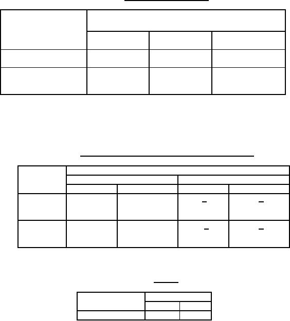
TABLE III. Contact installation tools.
Tool
Nomenclature
Part or Identifying Number (PIN)
Contacts
Contacts
Contacts
Size 22-22
Size 16-16
Size 12-12, 12-16
Crimp Tool
M22520/2-01
M22520/1-01
M22520/1-01
Positioner
M22520/2-06
M22520/1-02
M22520/1-02
Insertion/removal tool
M81969/30-07
M81969/30-06
M81969/30-01
Unwired
M81969/14-04
M81969/14-03
M81969/14-01
Wired
Torque: Relay socket and hardware shall be subjected to torque testing as specified in table IV.
Sockets shall be installed in mounting panel when test torque is applied. No visual evidence of
physical damage shall be permitted. Torque shall be maintained for a reasonable period of time to
insure stud, socket, and associated hardware have not been damaged (see table IV).
TABLE IV. Torque requirements (installed in panel conditions).
Torque
Thread size
Testing
Installation
Inch-pounds Newton-meters
Inch-pounds Newton-meters
.112-40
8
0.90
4 +1
0.45 + .11
+1
+ .11
-0
-0
18 +1
2.71
.190-32
24
2.03 + .11
+ .11
+1
-0
-0
Weight: Maximum weight of relay, socket, all contacts and all associated hardware shall be as
specified in table V.
TABLE V. Weight.
Maximum weight
Part designations
M12883/55
Pounds Grams
-01 through 03
.073
33
8