
MIL-DTL-12883F
APPENDIX
NOTES:
1. The values for dimensions A, M, and N, and the weight of gauge, are in the applicable specification
sheet for the particular socket.
2. The gauge body shall be metal.
3. The pins shall be steel, hardened to Rockwell C55-65 and polished to a 4 microinch (0.102 µm)
finish in accordance with ANSI B46.1. Ends of pins shall be hemispherical, and the hemisphere
shall be smoothly blended into the pin cylinder without shoulders or tapering. The end of the pin
may be flat for not more than one-quarter of the pin diameter.
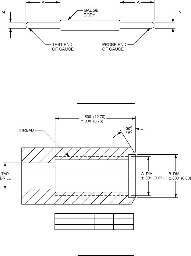
FIGURE 4. Contact/retention test gauge.
Thread
A
B
.164-32 UNF-2B
.165
.209
.190-32 UNF-2B
.191
.229
Material: Stainless steel in accordance with SAE J438, type A2, Rockwell hardened to C58-61.
FIGURE 5. Threaded torque test gauge.
30
For Parts Inquires submit RFQ to Parts Hangar, Inc.
© Copyright 2015 Integrated Publishing, Inc.
A Service Disabled Veteran Owned Small Business