
INCH-POUND
MIL-DTL-55302/172A
15 April 2013
SUPERSEDING
MIL-C-55302/172(USAF)
16 January 1985
DETAIL SPECIFICATION SHEET
CONNECTORS, PRINTED CIRCUIT SUBASSEMBLY AND ACCESSORIES:
HARDWARE, COUPLING AND LOCKING
This specification is approved for use by all Departments and Agencies of the Department of Defense.
The requirements for acquiring the product described herein shall consist of this specification sheet and
MIL-DTL-55302.
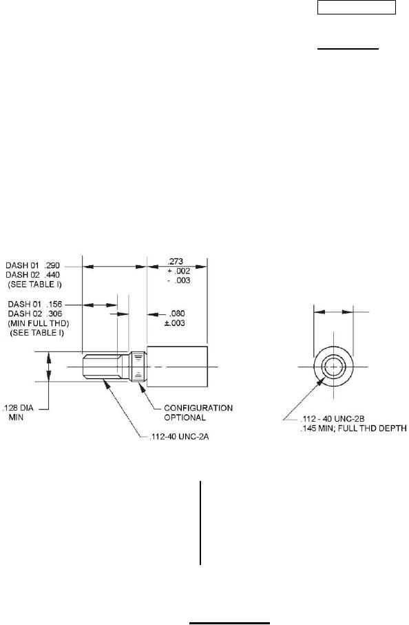
.182 MAX
Inches
mm
Inches
mm
.002
0.05
.156
3.96
.003
0.08
.182
4.62
.080
2.03
.273
6.93
.112
2.84
.290
7.37
.128
3.25
.306
7.72
.145
3.68
.440
11.18
FIGURE 1. Coupling bushing.
AMSC N/A
FSC 5935