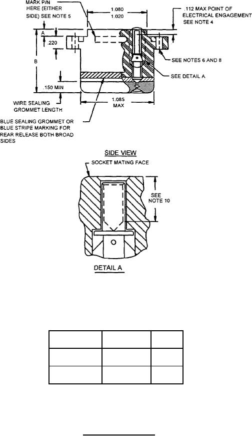
MIL-DTL-12883-40 Sockets, Plug-In Electronic Components For Relays, 4-Pole, 10 Amperes \(Mil-R-6106, Mil-R-83536, Mil-R-83726, And Ms27709\)