
MIL-DTL-24231/4E(SH)
(8) SLOTS EQUALLY SPACED.
3
32R
1
64R
Ø2.594
Ø3.375
Ø1.859
Ø2.750
1
16R
2.750-12UN-2B
1
1
8
8
1
2
3
8
1
8
1.375
125
ALL OVER
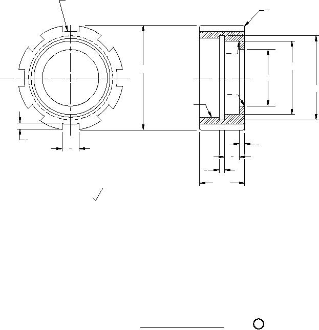
FIGURE 5. Coupling M24231/4-011.
12
6
For Parts Inquires submit RFQ to Parts Hangar, Inc.
© Copyright 2015 Integrated Publishing, Inc.
A Service Disabled Veteran Owned Small Business