
MIL-DTL-24231/4E(SH)
FORM TO SHAPE
AS SHOWN.
+0.000
125 ALL OVER
0.859 -0.009
EXCEPT AS SHOWN
Ø2.562
2.377
Ø 2.373
+0.000
32
Ø1.624 -0.005
+0.005
15°
Ø1.500 -0.000
+0.001
0.046R -0.001
32
+0.000
0.859 -0.009
+0.000
7
MIN
0.094 -0.005
16
3
32
1
2
0.594
ROUND ALL EDGES.
1
0.093
32R
2.734
2.704
30° APPROX.
3.015
2.985
* ENLARGE AS REQUIRED
TO SUIT CABLE DIAMETER.
1
16R
*Ø1372
Ø1.811
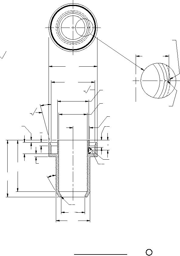
FIGURE 8. Plug sleeve M24231/4-010.
10
9
For Parts Inquires submit RFQ to Parts Hangar, Inc.
© Copyright 2015 Integrated Publishing, Inc.
A Service Disabled Veteran Owned Small Business