
MIL-DTL-28748/4F
Inches
mm
0.05
.002
0.08
.003
0.13
.005
0.20
.008
0.25
.010
0.41
.016
1.91
.075
2.79
.090
2.79
.110
3.63
.143
3.81
.150
4.57
.180
5.94
.234
6.35
.250
6.60
.260
9.40
.370
9.53
.375
11.13
.438
19.444
.7655
22.23
.875
22.35
.880
38.89
1.531
45.72
1.800
52.02
2.048
60.33
2.375
69.85
2.750
The maximum insertion and withdrawal force (connector assembly) shall be 130 lbf (578.27 N).
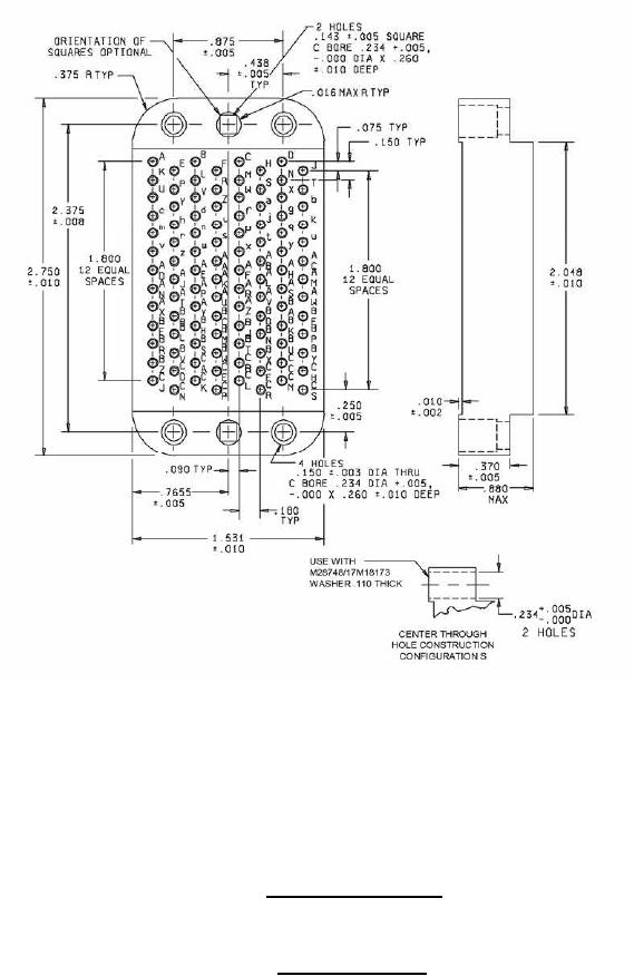
Configuration L - Suitable for all applications, except one-piece jackscrews.
Configuration S - For long jackscrews and shield only (through hole alternate construction).
Insert with 104 contacts
Insert designators L and S
FIGURE 2. Insert arrangements - Continued.
12
For Parts Inquires submit RFQ to Parts Hangar, Inc.
© Copyright 2015 Integrated Publishing, Inc.
A Service Disabled Veteran Owned Small Business